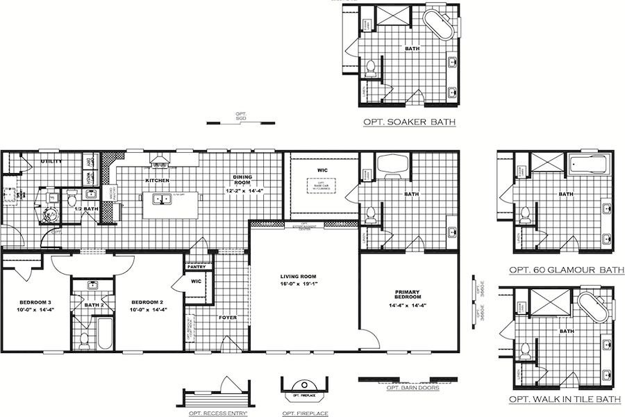
COUNTRY AIRE


  • 3 Bedrooms

  • 3 Baths

  • 2040 SQ Ft

floor plan

Virtual Tour

*The home series, floor plans, photos, renderings, specifications, features, materials and availability shown will vary by retailer and state, and are subject to change without notice.

Gallery

READY TO CUSTOMIZE Country Aire TO FIT YOUR dreamS?

Contact us today to book a free consultation at 803-463-8424!

Previous
Previous

Boujee 2

Next
Next

The Breeze